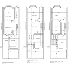
Accurate technical drawings are critical in the early design phase of many products, structures, and machines. These technical and engineering drawings are the instructions that are used in the production of the actual object. Beyond sketches, these documents are a type of language that communicates all the information necessary to create the part. For the designer's vision to be adequately delivered to the manufacturers, accuracy, precision, and quality are of the utmost importance.
Computer-assisted drawing and drafting (CAD) technologies have dramatically improved the efficiency and the tools available to drafting technicians. It has also opened up the potential for high-quality drafting work to be undertaken remotely. Working with expert drafting technicians remotely frees up the time and resources needed to hire in-house, allowing entrepreneurs and startups to leverage maximum value from their budgets.
Cad Crowd connects clients and firms with top-quality CAD drafting and design services. Whatever the nature or scope of your project, we'll connect you with expert drafting talent that will work with you to meet your project goals and timeline. With our global network of CAD drafters, efficient business practices, and lower overhead costs, Cad Crowd can offer top-quality drafting services at a much more affordable price than conventional drafting and design firms.
We offer hassle-free CAD outsourcing to take the guesswork out of online hiring by selecting a pre-qualified technician for you based on the needs of your project. We connect you with a top-tier drafting technician to provide services tailor-made to meet your specific requirements and technical needs. Our flexible services are custom fit to your project and your budget, and we can handle projects of any complexity and scope. Our servi
ces include:
Accuracy is key to excellent drafting. Our drafting technicians use cutting-edge computer-aided drafting technologies to produce extraordinarily precise and accurate 2D and 3D drawings for product design and architecture. We can also handle conversions and re-drawings of existing designs to improve their readability, accuracy, and editability and to facilitate archiving.
The expert CAD designers and drafters in Cad Crowd's global network are leaders in electrical, mechanical, and civil drafting and design. Drafting is one of our comprehensive design and product development services available for corporate clients and independent inventors or entrepreneurs. Whether you're working on bringing an electronic gadget to market or are looking for civil drafting services, our experts are ready to help achieve success with your design project.
By outsourcing your drafting needs, you free yourself up to focus more on the creative aspects of your design project. Put your valuable time and resources to the best use, and maximize your team's efficiency. Our experts are available for both long-term and short-term contract work, allowing you to hire professionals specifically for those tasks and moments when you need them, saving you the cost of keeping a drafting technician on staff while allowing you and your team to focus on what you do best. Our freelance CAD drafting technicians keep abreast of the latest trends and technologies and are ready to offer their services using whatever software is appropriate for your project.
We take on any drafting project, including 2D-to-3D CAD conversions, CAD drafting services, and architectural drafting. We guarantee high-quality, dimensionally accurate, professional CAD drawings. Our drafting services have been used by:
Our drafting technicians are ready to handle any conversions you might need. We can help you convert 2D drawings to 3D and to digitize hand-drawn work. Update your technical drawings for better clarity and precision. Improve your record keeping by converting hard copies to easily managed and replicable digital files.
We can help you convert any original drafting document into a precise and accurate multi-layered CAD drawing or convert from one CAD format to another. We offer vectorization and blueprint conversion — whatever you need to improve productivity.
Cad Crowd is based in the United States, and we understand the needs of entrepreneurs, new product developers, and innovators working to bring new products to market. Our expert freelancers can help with all aspects of the product design cycle. The designers and engineers in CAD Crowd's global network have a wide range of expertise, making us your one-stop shop for all the design services you need to achieve your project goals.
We take pride in offering drawing and drafting services specifically geared toward your project, whatever the scale and timeline. We provide quick turnaround times, accurate drawings, and top-quality work. We connect clients only with top-ranking freelance drafters and designers who we know will meet and exceed our client's expectations. And we stand behind that! We guarantee that designs will be accurate to your project description or your money back.
Take advantage of our leading CAD drafting services! Get a quote now. Tell us about your unique project, and we'll connect you with the freelance CAD professionals you need. After evaluating your project, we'll connect you with a leading CAD drafter hand selected according to the unique needs of your project.
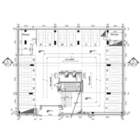
It is an understatement to say that civil engineering projects have a substantial number of stakeholders and capital resources tied to them. These are building projects that pertain to public goods such as roads, public buildings, water systems, and other municipal projects. Therefore, civil engineers and contractors must receive accurate and precise drafts. From bridges to subways, drafters and civil engineers work alongside one another to develop public goods that are safe and functional.
Today, cities are experiencing a significant increase in population, and the need for exceptional civil engineering is higher than it ever has been before. Drafters can create either 2D or 3D CAD graphics that allow engineers and contractors to create infrastructures for the public goods they are developing to support ever-expanding cities.
Cad Crowd’s network of global designers is more than capable of producing superb civil drafts. All are pre-vetted and experienced in various niche areas. We are confident that we can find a drafter that is the right fit for your next civil engineering project. Regardless of what you need, you can trust that Cad Crowd will connect you with a freelance designer that is ready to help your next project meet the specifications of public and private stakeholders.
Electricity powers everything we do. From helping your computer to operate to powering your home, exceptional electrical wiring is crucial to our professional and personal lives. Within itself, the procedure of electrical wiring can bring various challenges and intricacies. This is why accurate technical drawings are necessary for the electrical wiring process.
Electricians and manufacturing engineers work alongside drafters to bring their technical drawings to life. These electrical drafts are a blueprint meant to guide contractors and electricians. While paper-based drawings have been used for years, today’s technology has made it possible to produce 2D or 3D drafts with CAD (computer-aided design)-based software. As a result, drafters can work with software tools that look at angles, depths, and viewpoints that are not visible on a piece of paper.
From electronic devices to municipal buildings, our designers are prepared to work with you to develop technical drafts that provide exceptional guidance to building contractors and electricians.
Our electrical drafting designers can create electrical schematics, electrical system layouts, electrical panel designs, and other electrical wiring designs.
We understand that accuracy, precision, and customization is key to any drafting project, especially when using electrical drafting services. Our drafters have a full breadth of experience that enables them to approach every project with these concepts in mind. We invite you to work with one of our many electrical drafting designers. They are ready to take the detail and design work off your hands so you can work on your core business activities.
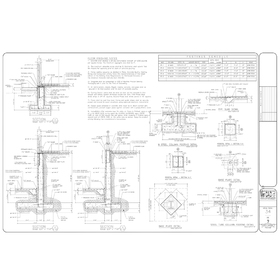
Are you developing a new robotic device or perfecting a new automobile engine? If so, mechanical drafting will be necessary for your design process. The purpose of mechanical drafting is for contractors and builders to understand better how a mechanical device is assembled and how parts work together.
Again, technical drawings are necessary to ensure mechanical devices are created accurately and efficiently. Cad Crowd design freelancers are adept at working with renowned and widely used tools like Autodesk Inventor, SketchUp, and AutoCAD to produce detailed and practical mechanical drafts. Today, technical drawings can be created using digital tools like the ones mentioned above, allowing manipulation, editing, and sending the designs to others. Each feature makes it much easier for designers to work with you and produce the drafts you need.
In addition to general mechanical drafting, we also offer services such as machine drawings, schematics, assembly drawings, and a wide range of other services that can help move your mechanical building projects to the next step. If interested, look at the other mechanical drafting services we offer.
Over the past few decades, scientists, entrepreneurs, and homeowners have been looking into renewable energy sources for various reasons. From cost savings to promoting a more environmentally sustainable approach to generating electricity, solar panels have been a popular option for powering homes and businesses.
However, there is more to solar energy than just placing panels on a home or business. There is often a complex process of connecting solar panels with existing electrical systems or creating new frameworks. This is where the skills of a solar panel PV drafter can come in handy. Solar panel PV drafting is the process of creating layouts that show the designs of individual solar panels and how these objects fit within the existing architecture.
You want to ensure that your panels are correctly installed the first time, as failing to do so can bring about additional costs. Our team at Cad Crowd understands the importance of shifting toward renewable energy and will do what they can to help you visualize the layout of your solar panel PV system. Our drafters can work with solar engineers to create customizable drafts, considering your geographical location, to ensure your panels are placed in an ideal position on your home or place of business.
There is a wide range of uses for technical drawings and the drafting process. It is challenging and likely impossible to produce accurate equipment, machinery, architecture, or devices without them. It is crucial that you first understand what you need and then seek a designer who can produce drafts that guide your team of contractors to produce machinery or architecture that meets the specifications of your audience.
Regardless of your needs, our freelance designers are committed to providing customized and personalized assistance with your next drafting and design project.
We offer freelance CAD drafting services, mechanical drafting, electrical drafting, and 2D-to-3D drafting conversion services. We set ourselves apart from traditional architecture and drafting companies by providing a full range of drafting and design services in one convenient package. Our professional network includes world-class drafting technicians, architects, and designers. We also offer patent drawing and drafting services for inventors.
We also offer crowdsourced design competitions for companies interested in open innovation and crowdsourcing. You set the parameters based on your project, you set the prize amount, and you select the winners. Choose from various submissions, and pay only for the ones you like best. Leverage the creative potential of open innovation and get the design you're looking for from the crowd.
Get an estimate from our top-tier designers now. Connect with the best freelance drafting technicians and CAD designers. Get top-quality CAD design and AutoCAD drafting services at a fraction of the cost of traditional design firms.